Downloadbereiche zu den Verfahren
Hier finden Sie die Downloadbereiche für folgende aktuelle Verfahren:
Aufstellung des B-Plans "Solarpark Schmerkendorf" der Stadt Falkenberg
3. Änderung des Bebauungsplans "Im Wolfsgraben" der Gemeinde Unterbreizbach
3. Änderung des Bebauungsplans Lausitz Propan der Gemeinde Röderland
Aufstellung des Solarparks Danna der Gemeinde Niedergörsdorf
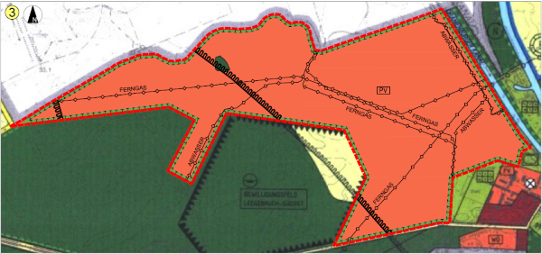
Downloadbereich zum Verfahren:
Aufstellung des Bebauungsplans "Solarpark Schmerkendorf" der Stadt Falkenberg/Elster
Förmliche Beteiligung der Behörden und sonstigen Träger öffentlicher Belange gemäß § 4 Abs. 2 des Baugesetzbuches (BauGB) sowie Abstimmung mit den Nachbargemeinden gemäß § 2 Abs. 2 BauGB
Download:
Alle Unterlagen für die Beteiligung in einem zip-Ordner
Downloadbereich zum Verfahren:
3. Änderung des Bebauungsplans "Im Wolfsgraben" der Gemeinde Unterbreizbach
Förmliche Beteiligung der Behörden und sonstigen Träger öffentlicher Belange gemäß § 4 Abs. 2 des Baugesetzbuches (BauGB) sowie Abstimmung mit den Nachbargemeinden gemäß § 2 Abs. 2 BauGB
Download:
Alle Unterlagen für die Beteiligung in einem zip-Ordner
Downloadbereich zum Verfahren:
16. Änderung des Flächennutzungsplans der Stadt Heringen (Werra), Änderungsbereich „Widdershäuser Straße“
Förmliche Beteiligung der Behörden und sonstigen Träger öffentlicher Belange gemäß § 4 Abs. 2 des Baugesetzbuches (BauGB) sowie Abstimmung mit den Nachbargemeinden gemäß § 2 Abs. 2 BauGB
Download:
Alle Unterlagen für die Beteiligung in einem zip-Ordner
Das Passwort zum Öffnen der Datei entnehmen Sie bitte Ihrem Anschreiben. Bitte beachten Sie die Groß- und Kleinschreibung. Evtl. zum Speichern der Dateien im Browser "Ziel speichern unter" oder Ähnliches wählen.
Downloadbereich zum Verfahren:
2. Änderung des Bebauungsplans 28/03 „Western- und Freizeitpark am Röddelinsee – Silver Lake City“ der Stadt Templin
hier: frühzeitige Beteiligung der Behörden und sonstigen Träger öffentlicher Belange gemäß § 4 Abs. 1 des Baugesetzbuches (BauGB) sowie Abstimmung mit den Nachbargemeinden gemäß § 2 Abs. 2 BauGB
Download:
Alle Unterlagen für die Beteiligung in einem zip-Ordner
Benutzernamen und Passwort entnehmen Sie bitte Ihrem Anschreiben. Bitte beachten Sie die Groß- und Kleinschreibung. Evtl. zum Speichern der Dateien im Browser "Ziel speichern unter" oder Ähnliches wählen.
Downloadbereich zum Verfahren:
3. Änderung des Bebauungsplans „Gewerbegebiet für die Lausitz Propan GmbH im OT Prösen“ und 5. Änderung des Flächennutzungsplans der Gemeinde Röderland
hier: frühzeitige Beteiligung der Behörden und sonstigen Träger öffentlicher Belange gemäß § 4 Abs. 1 des Baugesetzbuches (BauGB) sowie Abstimmung mit den Nachbargemeinden gemäß § 2 Abs. 2 BauGB
Download:
Alle Unterlagen für die Beteiligung in einem zip-Ordner
Downloadbereich zum Verfahren:
Aufstellung des Bebauungsplans „Solarpark Danna“ und 9. Änderung des Flächennutzungsplans der Gemeinde Niedergörsdorf
hier: frühzeitige Beteiligung der Behörden und sonstigen Träger öffentlicher Belange gemäß § 4 Abs. 1 des Baugesetzbuches (BauGB) sowie Abstimmung mit den Nachbargemeinden gemäß § 2 Abs. 2 BauGB
Download:
Alle Unterlagen für die Beteiligung in einem zip-Ordner
Downloadbereich zum Verfahren:
Aufstellung des Bebauungsplans Nr. 72 "Solarpark Pinnow, Stadtteil Borgsdorf" der Stadt Hohen Neuendorf
Förmliche Beteiligung der Behörden und sonstigen Träger öffentlicher Belange gemäß § 4 Abs. 2 des Baugesetzbuches (BauGB) sowie Abstimmung mit den Nachbargemeinden gemäß § 2 Abs. 2 BauGB
Download:
Alle Unterlagen für die Beteiligung in einem zip-Ordner
Das Passwort entnehmen Sie bitte Ihrem Anschreiben. Bitte beachten Sie die Groß- und Kleinschreibung. Evtl. zum Speichern der Dateien im Browser "Ziel speichern unter" oder Ähnliches wählen.
Downloadbereich zum Verfahren:
Flächennutzungsplan-Änderungsverfahren der Stadt Hohen Neuendorf – Änderung Nr. 026/2022 „Teilbereich des Solarparks westlich der Ortslage von Pinnow, Stadtteil Borgsdorf“
Förmliche Beteiligung der Behörden und sonstigen Träger öffentlicher Belange gemäß § 4 Abs. 2 des Baugesetzbuches (BauGB) sowie Abstimmung mit den Nachbargemeinden gemäß § 2 Abs. 2 BauGB
Download:
Alle Unterlagen für die Beteiligung in einem zip-Ordner
Das Passwort entnehmen Sie bitte Ihrem Anschreiben. Bitte beachten Sie die Groß- und Kleinschreibung. Evtl. zum Speichern der Dateien im Browser "Ziel speichern unter" oder Ähnliches wählen.

