Projekt
Vorhabenbezogener Bebauungsplan Nr. 61 "Altenpflegeheim an der Feldstraße" der Stadt Dessau-Roßlau
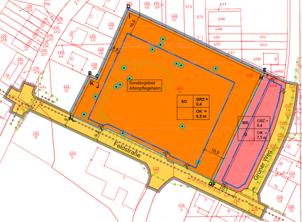
Das wesentliche Ziel des vorhabenbezogenen Bebauungsplans bestand darin, die Voraussetzungen für eine geordnete und standortgerechte Nutzung des in zentrennaher Lage im Stadtteil Roßlau gelegenen Grundstücks durch ein Altenpflegeheim zu schaffen. Das Grundstück sollte als innerstädtischer Standort für die soziale Infrastruktur entwickelt und damit einer zukunftsfähigen Nutzung zugeführt werden. Der Vorhabenträger beabsichtigte die Errichtung eines Altenpflegeheims als Ersatzstandort für das bislang betriebene „Haus Waldstraße“, das sich in 800 m Entfernung zur Feldstraße befindet. Der geplante Pflegestandort sollte jedoch nur rund 2/3 der Flächen des Plangebiets einnehmen. Daher sollte neben dem Altenpflegeheim ein Wohngebiet eintstehen, um den integrierten Standort optimal zu nutzen.
Die Planung diente der Wiedernutzbarmachung von Flächen im Innenbereich und stellte dementsprechend eine sogenannte Maßnahme der Innenentwicklung dar. Der vorhabenbezogene Bebauungsplan nach § 12 Abs. 3a BauGB wurde daher als Bebauungsplan der Innenentwicklung im beschleunigten Verfahren nach § 13a BauGB aufgestellt.

Auftraggeber: Stadt Dessau-Roßlau i. V. m. Saarländischer Schwesternverband e.V., Ottweiler
Leistungen: B-Plan, VEP, Durchführung Verfahren, planungsrechtliche Beratung, städtebaulicher Vertrag
Größe: 1,7 ha
Planung: 2012

