Projekt
Bebauungsplan B 21 "Zentrum Blankenfelde" in der Gemeinde Blankenfelde-Mahlow, Brandenburg
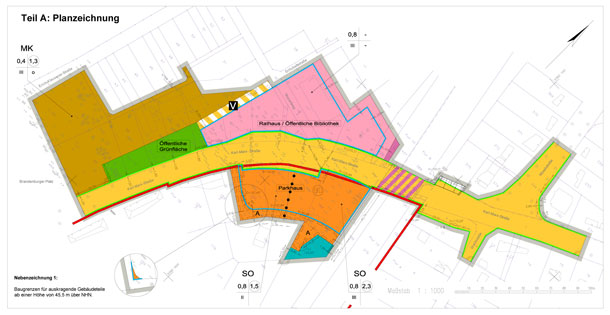
In der Gemeinde Blankenfelde-Mahlow war der zentrale Bereich im Ortsteil Blankenfelde zwischen Bahnhof und Brandenburger Platz städtebaulich neu zu ordnen.
Die Gemeinde beabsichtigte, den bislang von geringer Nutzungsdichte, Brachflächen und wildem Parken geprägten zentralen Bereich mit einem neuen Rathaus, einer Bibliothek und einem Parkhaus für Pendler zu bebauen. Die Sicherung im Plan erfolgt als Flächen für Gemeinbedarf und Sondergebiet "Parkhaus". Diese Flächen werden zur Belebung des Ortsteilzentrums durch Mischgebietsbebauung und eine öffentliche Grünfläche ergänzt. Für die Anordnung der geplanten Nutzungen lag seitens eines Architekturbüros bereits ein Entwurf vor, der die Änderung der Erschließungsstraßen erforderte. Die Sicherung der Planung erfolgte im beschleunigten Verfahren als Bebauungsplan der Innenentwicklung nach § 13a BauGB.
Zusätzlich war die räumliche und rechtliche Abstimmung mit einem laufenden Planfeststellungsverfahren der Deutschen Bahn zu leisten, die den niveaugleichen Bahnübergang durch eine Straßenunterführung ersetzen und den Bahnhof mit S-Bahn- und Regionalbahn-Anschluss erneuern möchte. Das Plangebiet liegt außerdem in der (zukünftigen) Einflugschneise des Flughafens Berlin-Brandenburg International, so dass außerdem Festsetzungen zum Immissionsschutz notwendig wurden.

Auftraggeber: Gemeinde Blankenfelde-Mahlow
Leistungen: B-Plan, Durchführung Verfahren, planungsrechtliche Beratung
Größe: 2,6 ha
Planung: 2008 - 2009

